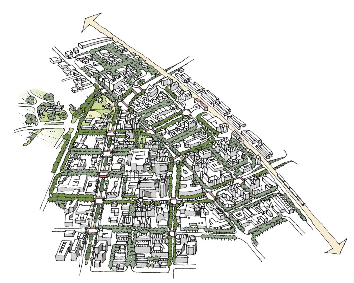
Tropico TOD Published May 26, 2016 at 3564 × 2849 in Tropico Station ← Previous Next → Tropico TOD birdseye as drawn by CityWorks Design